Подпорные стенки ПСМ66.42-3, благодаря своей массивности не позволяют грунту или другому сыпучему материалу осыпаться и сползти. Грунт может быть засыпан также под углом: изделия такой конструкции могут быть установлены как составные части насыпей.
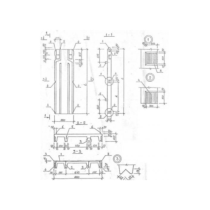
Лицевая плита ЖБИ вставляется в паз подошвы, образуя прочную надёжную конструкцию – ограждение. Угол между двумя плитами, как правило, прямой. Сама подошва заглубляется в грунт на глубину 600 - 1500 мм.
универсальны, и используются при любом типе строительства: жилом, промышленном; коммерческом. А также в различных климатических зонах, исключая вечную мерзлоту. ЖБИ можно применять для наклонных плоскостей, в том числе при строительстве железнодорожных и автомобильных путей. Допускается установка в зоне повышенно сейсмичности (до 8 баллов). Тем не менее, ЖБИ не относятся к специальным противооползневым средствам, поэтому их не рекомендуется использовать в гидротехнических сооружениях.
- ПСМ – категория изделия, подпорная стена монолитная;
- 15 - габариты изделия, высота и ширина;
- 2 – индекс, характеризующий несущую способность.
В процессе производства подпорных стенок используется качественный бетон марки М300 с модифицирующими присадками, увеличивающими долговечность. Так как ЖБИ такого типа относятся к особо ответственным изделиям, они нормируются по прочности, жёсткости, и ещё целому ряду показателей. Водонепроницаемость и морозостойкость изделий варьируется в зависимости от места установки.
Если предполагается устанавливать подпорные стенки в контакте с агрессивными средами, используется бетон с пониженной проницаемости.
Простота, надёжность и жёсткость конструкции делает ЖБИ устойчивыми к большим нагрузкам. Увеличенная несущая способность даёт возможность устанавливать подпорные стенки ПСМ66.42-3 в любом типе грунта. Его давление неспособно деформировать ЖБИ.
Для увеличения жесткости стенка упрочняется поперечной и продольной арматурой класса A-I и A-III, обработанной антикоррозионным составом.
В конструкцию ЖБИ входят петли, облегчающие установку и транспортировку.
Размеры и характеристики ПСМ66.42-3 представлены в таблице ниже. по ГОСТ допускается отклонение размеров на более 4-6 мм.
- Длина: 3 000 мм.
- Ширина: 4 200 мм.
- Высота: 6 600 мм.
- Вес: 31,05 т.
- Объем: 12.420 м³
- ГОСТ: Серия 3.002.1-2
Доставка ПСМ66.42-3 осуществляется собственным транспортом в г. Черноморское, области и другим регионам России! Расчет доставки можно заказать в разделе Доставка.
Транспортировать тяжеловесный груз согласно ГОСТ Серия 3.002.1-2 разрешено только в горизонтальном положении в спецтранспорте. При погрузке/разгрузке запрещено перемещать по нескольку штук. Исключение: такелажные работы специальными устройствами, где допускается подъем одновременно нескольких изделий.
При складировании на открытом грунте в основание штабеля кладется прокладка толщиной не менее 10 см, необходим сток для воды.
ПСМ66.42-3 цена за штуку и зависит от их размера, толщины, наличия/отсутствия укрепляющих добавок, армирования. Чтобы не переплачивать за товар, целесообразно заказать напрямую от производителя на заводе ЖБИ Маркет. Так вы получите сертифицированные железобетонные изделия с лабораторным заключением и по оптимальной стоимости.
Наша компания может предложить вам оптимальный баланс между качеством и стоимостью.
Наш прайс можно запросить оформить заказ в интересующем Вас разделе сайта.
Зайдите ознакомиться с ценами и убедитесь, что сотрудничество с нами будет выгодным для вас.
Наш завод ООО ЖБИ Маркет осуществляет свою деятельность с октября 2003 года.
Выгодно купить ПСМ66.42-3 в Черноморском без посредников на заводе ЖБИ Маркет. Новые ПСМ66.42-3 всегда есть в наличии на наших складах. Сейчас мы наращиваем производственную мощность и ищем новых надежных партнеров.
Если Вы всерьез настроены на сотрудничество – свяжитесь с нами по телефонам, указанным во вкладке «Контакты».









