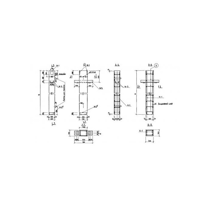
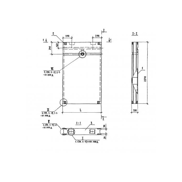
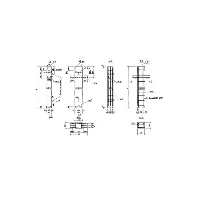
Плита перекрытия 3ПГ 6-4 АтVск представляет собой железобетонное изделие, предназначенное для использования в строительстве зданий и сооружений. Она имеет размеры 3000x6000 мм и толщину 400 мм. Плита обладает высокой прочностью и надежностью, что обеспечивает долгий срок службы и безопасность конструкции.
Плита перекрытия 3ПГ 6-4 АтVск широко используется в строительстве многоэтажных зданий, складов, производственных помещений и других объектов. Она применяется для создания горизонтальных перекрытий между этажами, обеспечивая равномерное распределение нагрузок и повышенную жесткость конструкции. Плиты перекрытия устанавливаются на опоры или стены с помощью специальных крепежных элементов, обеспечивая прочное и надежное соединение.









